Инвентарные покрытия временных дорог

Страница 3

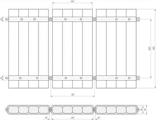
Ленточное покрытие ЛД – 5

Оно представляет собой две гибкие ленты (рисунок 5), уложенные в колесопроводы. Каждая лента собирается из отдельных звеньев (щитов), соединенных между собой шарнирно. Ленты связываются в колесопроводы через 14 щитов соединительным щитом, который обеспечивает устойчивость покрытия и фиксирует межколейное расстояние. Основные звенья (щиты) размером 120x700x1100 м собирают из четырехкантных брусьев сечением 0,12x160х1100 м. Брусья в щит соединяют двумя металлическими хомутами, к концам которых приваривают кронштейны с отверстиями под палец для шарнирного соединения щитов в ленту. В ленте щиты (брусья) располагаются перпендикулярно к оси колёсопровода. т.е. движение лесовозного транспорта происходит перпендикулярно к волокнам древесины. Соединительный щит собирают из брусьев размерами 120x160x3000 мм.

Хомуты изготавливают из полосовой стали размером 6x80 мм. При сборке ленты кронштейны двух соседних щитов соединяют металлическим пальцем, который шплинтуют стальной проволокой. Брусья выпиливают из хвойной или лиственной древесины, воздушно-сухого состояния, без гнили и трещин.

Ленточное покрытие собирают на специальной строительной площадке. Основным оборудованием являются: гидравлический запрессовочный станок; рольганг для сборки щитов в ленты и грузоподъемный механизм для укладки готовых лент в штабель.

Описание: Ленточное покрытие ЛД-5

Рисунок 5 – Ленточное покрытие ЛД-5

Ленточное покрытие ИЛП-2

Белорусским политехническим институтом разработано ленточное покрытие ИЛП-2. Покрытие представляет собой два колёсопровода из гибких лент. Каждая линия собирается из четырёхкантных брусьев длиной 2 метра, соединённые между собой металлическими шпильками. Образуется силовая, относительно гибкая лента, которую можно собирать в «гармошку».

Покрытие ИДП-6К

Учёными Санкт-Петербургской лесотехнической академии предложено и испытано в производственных условиях покрытие ИДП-6К, оно представляет собой щиты длиной 6 метров. Основным несущим элементом является металлический каркас из швеллеров, в который закладываются короткие бруски, расположенные поперёк колеи. Недостатком данного покрытия является большой расход металлопроката (65 тонн на 1 километр покрытия).

Покрытиям ИЛП-2 и ИДП-6К необходимы дополнительные испытания и проверки в производственных условиях.

Ленточное покрытие БТИ им. С. М. Кирова

Представляет собой ленту, состоящую из отдельных элементов (брусьев) длиной до 2 м, сечением 140х140мм. Брусья изготовляются из здоровой древесины хвойных или лиственных пород. Наличие гнили, расколов и сплошных трещин не допускается. Брусья в ленте размещены в семь рядов и смещены относительно друг друга на половину длины. Сборные элементы соединены шпильками M 18. Такое соединение брусьев позволяет получить гибкую ленту, не имеющую стыковых соединений. Крайние элементы покрытия могут быть изготовлены из круглого леса диаметром 160-180 мм. В местах установки шпилек в брусьях сделаны затески для предохранения колес автопоезда от повреждении при сходе их с колеи.

Сборно-разборное покрытие из нагельных щитов

Предназначено для строительства временных веток и усов лесовозных автомобильных дорог в тяжёлых грунтово-гидрологических условиях и рассчитано под движение транспорта с нагрузкой на ось до 9 тонн. Основным конструктивным элементом покрытия являются деревянные нагельные щиты размером 6,0 х 0,96 - 1,08 х 0,2 м, показанные на рисунке 6, которые соединяются между собой в колесо проводах специальными стыковыми металлическими закладными деталями. На усах небольшой протяжённости или кратковременного действия допускается укладывать щиты в колёсопроводы без стыковых деталей.

Нагельные щиты изготавливают из двух-, трех- или четырехкантных брусьев на специализированной сверлильно-запрессовочной линии ЛВ-111. Брусья скрепляют через 1 м деревянными нагелями восьмиугольного сечения с диаметром описанной окружности 80 мм. Диаметр отверстий под нагели 75 мм, просверливаются поперёк щита так, чтобы нейтральная ось щита совпадала с центром отверстия. Нагеля запрессовываются в отверстия с усилием до 10 тонн. Для изготовления нагельных щитов рекомендуется использовать двухкантный брус толщиной 20 см. В отдельных случаях можно применить трёх- и четырёхкантный брус. Нагельное крепление, обеспечивая прочное соединение брусьев, исключает применение металлических креплений и относительно легко механизируется.

Страницы: 1 2 3 4

Разделы

Copyright © 2026 - All Rights Reserved - www.transpovolume.ru